Flattach

6 leistbare Reihenhäuser in Flattach
Standort: Fragant, Flattach
Die Reihenhäuser selbst werden über das westliche Nachbargrundstück, über ein eingetragenes Servitut, erschlossen. Alle Tops sind barrierefrei erreichbar. Die Erd- und Obergeschosse der Hauptbaukörper sind als Vollgeschosse geplant, die Nebenbaukörper (Fahrradräume) sowie die Müllsammelstelle als eingeschossige Bauten.
Erdgeschoss
Über einen überdachten Zugang, mit angrenzenden Fahrradraum, gelangt man in den Eingangsbereich. An diesen angrenzend befindet sich eine von insgesamt zwei Sanitäreinheiten des Reihenhauses. Vom Eingangsbereich ausgehend erreicht man den zentralen Wohn-, Ess- & Kochbereich. Der Wirtschafts- und Lagerraum samt Haustechnik bildet den Abschluss der Räume des Erdgeschosses. Die Vertikalverbindung zum Obergeschoss erfolgt über eine gewendelte Treppe.
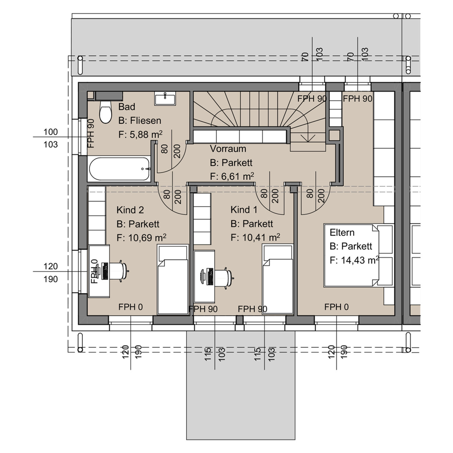
Obergeschoss
In dieser Ebene befinden sich zwei Kinderzimmer, das Elternschlafzimmer sowie die zweite Sanitäreinheit. Erschlossen werden diese Räume über einen gemeinsamen Vorraum.
VERKAUF & BERATUNG
durch Innovation Wohnen GmbH

Alle Informationen zu den Eigentumsprojekten erhalten Sie bei:



Erdgeschoss: 55,57 m²
Obergeschoss: 48,02 m²
Wohnfläche: 103,59 m²
Garten: 78,44 m²
Eingang: 4,68 m²
WC: 2,52 m²
Hauswirtschaftsraum: 9,30 m²
Wohn-Essraum: 34,66 m²
Abstellraum: 4,41 m²
Vorraum: 6,61 m²
Bad: 5,88 m²
Kind 2: 10,69 m²
Kind 1: 10,41 m²
Eltern: 14,43 m²
Überdachter Eingang: 9,08 m²
Terrasse: 21,27 m²
Privater Garten: 78,44 m²


Erdgeschoss: 55,57 m²
Obergeschoss: 48,02 m²
Wohnfläche: 103,59 m²
Garten: 106,32 m²
Eingang: 4,68 m²
WC: 2,52 m²
Hauswirtschaftsraum: 9,30 m²
Wohn-Essraum: 34,66 m²
Abstellraum: 4,41 m²
Vorraum: 6,61 m²
Bad: 5,88 m²
Kind 2: 10,69 m²
Kind 1: 10,41 m²
Eltern: 14,43 m²
Überdachter Eingang: 8,66 m²
Terrasse: 21,27 m²
Privater Garten: 106,32 m²


Erdgeschoss: 55,57 m²
Obergeschoss: 48,02 m²
Wohnfläche: 103,59 m²
Garten: 93,66 m²
Eingang: 4,68 m²
WC: 2,52 m²
Hauswirtschaftsraum: 9,30 m²
Wohn-Essraum: 34,66 m²
Abstellraum: 4,41 m²
Vorraum: 6,61 m²
Bad: 5,88 m²
Kind 2: 10,69 m²
Kind 1: 10,41 m²
Eltern: 14,43 m²
Überdachter Eingang: 8,80 m²
Terrasse: 21,27 m²
Privater Garten: 93,66 m²


Erdgeschoss: 55,57 m²
Obergeschoss: 48,02 m²
Wohnfläche: 103,59 m²
Garten: 72,07 m²
Eingang: 4,68 m²
WC: 2,52 m²
Hauswirtschaftsraum: 9,30 m²
Wohn-Essraum: 34,66 m²
Abstellraum: 4,41 m²
Vorraum: 6,61 m²
Bad: 5,88 m²
Kind 2: 10,69 m²
Kind 1: 10,41 m²
Eltern: 14,43 m²
Überdachter Eingang: 9,08 m²
Terrasse: 21,27 m²
Privater Garten: 72,07 m²


Erdgeschoss: 55,57 m²
Obergeschoss: 48,02 m²
Wohnfläche: 103,59 m²
Garten: 69,82 m²
Eingang: 4,68 m²
WC: 2,52 m²
Hauswirtschaftsraum: 9,30 m²
Wohn-Essraum: 34,66 m²
Abstellraum: 4,41 m²
Vorraum: 6,61 m²
Bad: 5,88 m²
Kind 2: 10,69 m²
Kind 1: 10,41 m²
Eltern: 14,43 m²
Überdachter Eingang: 8,64 m²
Terrasse: 21,27 m²
Privater Garten: 69,82 m²
*
Im Preis ist die nicht rückzahlbare Förderung bereits berücksichtigt.
VERKAUF & BERATUNG
durch Innovation Wohnen GmbH

Alle Informationen zu den Eigentumsprojekten erhalten Sie bei: